Bilocale in affitto

Milano, Via Antonio Fogazzaro - Monte Nero
€ 1.550 / mese
Prezzo aggiornato
2 locali 2 locali
81 Mq 81 Mq
2 bagni 2 bagni

Bilocale in affitto

Milano, Via Antonio Fogazzaro - Monte Nero

Descrizione annuncio

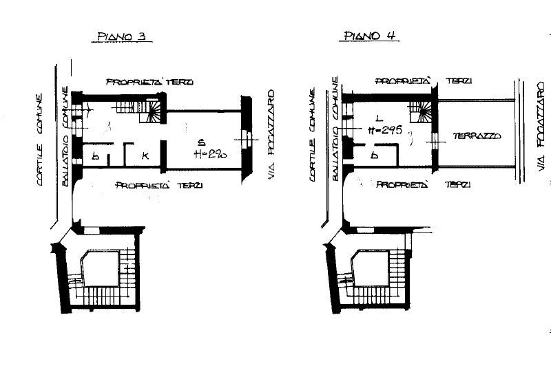
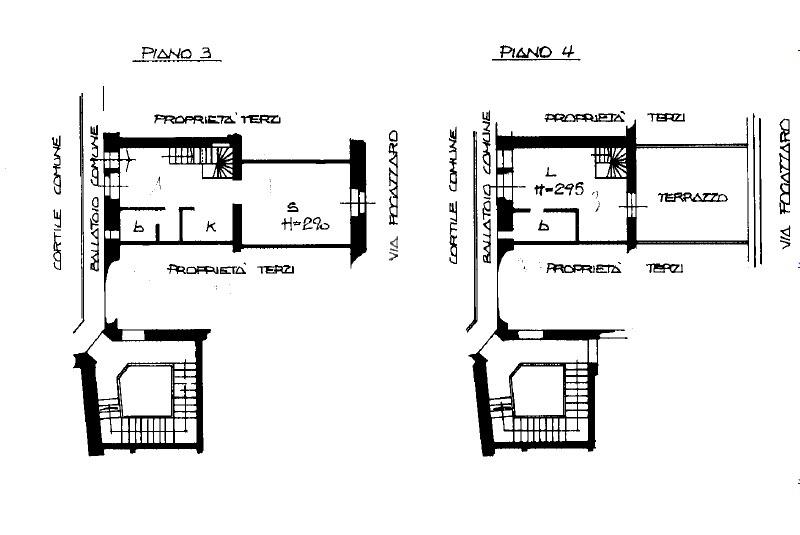
In via Antonio Fogazzaro, a ridosso di viale Monte Nero, all’interno di uno stabile d’epoca di ringhiera con ascensore, si propone ampio bilocale su due livelli con terrazzo.

L’appartamento dispone di un ingresso su entrambi i piani: al terzo piano troviamo il soggiorno con cucina separata ed un bagno finestrato; al piano superiore la camera da letto matrimoniale dal quale si accede ad un secondo bagno finestrato ed all'ampio terrazzo.

L'immobile ha doppia esposizione ed è dotato di aria condizionata.

Lo stabile dispone del servizio di portineria per l'intera giornata.

La posizione strategica offre facile accesso ai servizi locali, ai trasporti pubblici e alle numerose opportunità culturali e ricreative che la città di Milano ha da offrire. L'appartamento si trova infatti nelle immediate vicinanze di diversi istituti universitari, quali IED, Marangoni, ecc. e vari punti di interesse, quali Tribunale, Policlinico e non distante dalla fermata MM3 di Porta Romana o dalla fermata MM4 di Tricolore.

Libero da giugno.

Mostra tutto

Nelle vicinanze

Trasporto pubblico Trasporto pubblico
Porta Romana
Porta Romana
820 m
Crocetta
Crocetta
980 m
stazione di Milano Porta Vittoria
stazione di Milano Porta Vittoria
1,3 Km
stazione di Milano Dateo
stazione di Milano Dateo
1,3 Km
Viale Monte Nero - Via Bergamo
Viale Monte Nero - Via Bergamo
120 m
Ricariche auto elettriche Ricariche auto elettriche
BeCharge Milano Botta
420 m
A2A Isola Digitale Cinque Giornate
510 m
A2A Isola Digitale Largo Marinai D'Italia
550 m
A2A Palazzo di Giustizia
710 m
A2A Isola Digitale Corso Lodi
810 m
Scuole Scuole
Scuole
440 m
International Kid's School
590 m
Scuola secondaria di primo grado "Giuseppe Verdi"
620 m
Istituto Zaccaria
650 m
Liceo scientifico statale Leonardo da Vinci
690 m
Farmacia Farmacia
Farmacia
290 m
Farmacia Monte Nero
330 m
Farmacia Ferrarini
390 m
Farmacia Cadore
420 m
Farmacia Dottor Cantone
470 m
Ospedali Ospedali
Ospedali
670 m
Casa di cura "Città di Milano"
790 m
Policlinico di Milano
830 m
Centro Medico Milano Tree Of Life S.r.l.
1,1 Km
Casa di Cura La Madonnina
1,1 Km
Supermercati Supermercati
Natura Sì
100 m
Carrefour Market
140 m
Bio C Bon
250 m
Negozio Leggero
300 m
Picard Surgelati
430 m
Negozi Negozi
Negozi
110 m
Del Mare 1911 - Spaccio Aziendale
230 m
Bijoux d'epoque
300 m
Carrefour Express
360 m
Tezenis
430 m
Bar Bar
El pan d'na volta
160 m
KOKO
300 m
Pandy e Mucca
390 m
Impronta birraia
460 m
Balubà
480 m
Ristoranti Ristoranti
La Bracioleria
10 m
Pizzeria Gourmet
40 m
Zio Pesce
60 m
Mizuki
100 m
Mare mosso
110 m
Mostra tutto

Caratteristiche

Rif.:
61166774
Piano:
3 di 4 con ascensore (Piano alto)
Terrazzi:
1
Camere da letto:
1
Arredamento:
Completo
Condizionamento:
Autonomo
Mostra tutto
Prezzo Prezzo
€ 1.550 / mese
Spese annue Spese annue
€ 1.800

Classe Energetica

G
G
G
G
G
G
G
G
G
EP globale non rinnovabile:
175.00 kW h/m² anno
EP invernale del fabbricato:
EP estiva del fabbricato:
Anno di costruzione:
1930
Riscaldamento:
Autonomo
Tipo impianto:
A radiatori
Tipo alimentazione:
Metano

Prezzo ridotto di €1 (7%%)

Ti interessa visionare l'immobile?

Fissa un appuntamento  Fissa un appuntamento

Richiedi informazioni

Clicca su Leggi per aprire l'informativa
* Questi campi sono obbligatori
Affiliato
Studio Premuda Sas
Viale Premuda, 7 20129 Milano (MI)

Il nostro staff


  • Alberto Cesati
    Affiliato

  • Francesco Basile
    Collaboratore

  • Carlotta Cenedese
    Coordinatrice

  • Elena Maria Convertini
    Collaboratrice
Viale Premuda, 7 20129 Milano (MI)
Zona: V Giornate-Premuda-Tribunale
Mostra su mappa
Affiliato
Studio Premuda Sas
Viale Premuda, 7 20129 Milano (MI)

2026 Tecnocasa Franchising S.p.A. - P. IVA 08365160152 - Via Monte Bianco 60/A 20089 Rozzano (MI). Ogni agenzia ha un proprio titolare ed è autonoma. Privacy policy | Policy utilizzo | Cookie policy