Trilocale in affitto

Milano, Via Antonio Fogazzaro - Monte Nero
€ 1.550 / mese
3 locali 3 locali
80 Mq 80 Mq
2 bagni 2 bagni

Trilocale in affitto

Milano, Via Antonio Fogazzaro - Monte Nero

Descrizione annuncio

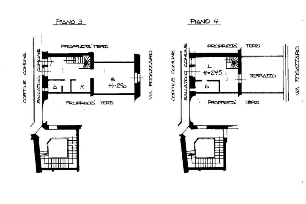
In via Antonio Fogazzaro, a ridosso di viale Monte Nero, all’interno di uno stabile d’epoca di ringhiera dotato di ascensore e servizio di portineria attivo per l'intera giornata, proponiamo in locazione un trilocale su due livelli con ampio terrazzo.

L’appartamento dispone di ingresso su entrambi i piani. Al terzo piano si sviluppa la zona giorno, composta da un luminoso soggiorno, una cucina separata dotata di lavastoviglie ed un bagno finestrato. Al livello superiore troviamo la camera da letto matrimoniale dalla quale si accede direttamente al terrazzo e ad un secondo bagno finestrato.

L’immobile sarà oggetto di un completo rinnovamento: verrà interamente imbiancato, sarà installata l’aria condizionata e uno dei due bagni sarà riorganizzato con la realizzazione di un moderno box doccia in sostituzione della vasca.

Completa la proprietà una cantina di pertinenza.

La posizione strategica offre facile accesso ai servizi locali, ai trasporti pubblici e alle numerose opportunità culturali e ricreative che la città di Milano ha da offrire. L'appartamento si trova infatti nelle immediate vicinanze di diversi istituti universitari, quali IED, Marangoni, ecc. e vari punti di interesse, quali Tribunale, Policlinico e non distante dalla fermata MM3 di Porta Romana o dalla fermata MM4 di Tricolore.

Disponibile da Giugno.

Mostra tutto

Nelle vicinanze

Trasporto pubblico Trasporto pubblico
Porta Romana
Porta Romana
820 m
Crocetta
Crocetta
980 m
stazione di Milano Porta Vittoria
stazione di Milano Porta Vittoria
1,3 Km
stazione di Milano Dateo
stazione di Milano Dateo
1,3 Km
Viale Monte Nero - Via Bergamo
Viale Monte Nero - Via Bergamo
120 m
Ricariche auto elettriche Ricariche auto elettriche
BeCharge Milano Botta
420 m
A2A Isola Digitale Cinque Giornate
510 m
A2A Isola Digitale Largo Marinai D'Italia
550 m
A2A Palazzo di Giustizia
710 m
A2A Isola Digitale Corso Lodi
810 m
Scuole Scuole
Scuole
440 m
International Kid's School
590 m
Scuola secondaria di primo grado "Giuseppe Verdi"
620 m
Istituto Zaccaria
650 m
Liceo scientifico statale Leonardo da Vinci
690 m
Farmacia Farmacia
Farmacia
290 m
Farmacia Monte Nero
330 m
Farmacia Ferrarini
390 m
Farmacia Cadore
420 m
Farmacia Dottor Cantone
470 m
Ospedali Ospedali
Ospedali
670 m
Casa di cura "Città di Milano"
790 m
Policlinico di Milano
830 m
Centro Medico Milano Tree Of Life S.r.l.
1,1 Km
Casa di Cura La Madonnina
1,1 Km
Supermercati Supermercati
Natura Sì
100 m
Carrefour Market
140 m
Bio C Bon
250 m
Negozio Leggero
300 m
Picard Surgelati
430 m
Negozi Negozi
Negozi
110 m
Del Mare 1911 - Spaccio Aziendale
230 m
Bijoux d'epoque
300 m
Carrefour Express
360 m
Tezenis
430 m
Bar Bar
El pan d'na volta
160 m
KOKO
300 m
Pandy e Mucca
390 m
Impronta birraia
460 m
Balubà
480 m
Ristoranti Ristoranti
La Bracioleria
10 m
Pizzeria Gourmet
40 m
Zio Pesce
60 m
Mizuki
100 m
Mare mosso
110 m
Mostra tutto

Caratteristiche

Rif.:
61208711
Piano:
3 di 4 con ascensore (Piano alto)
Terrazzi:
1
Camere da letto:
1
Arredamento:
Completo
Condizionamento:
Autonomo
Mostra tutto
Prezzo Prezzo
€ 1.550 / mese
Spese annue Spese annue
€ 1.800

Classe Energetica

G
G
G
G
G
G
G
G
G
EP invernale del fabbricato:
EP estiva del fabbricato:
Anno di costruzione:
1930
Riscaldamento:
Autonomo
Tipo impianto:
A radiatori
Tipo alimentazione:
Metano

Ti interessa visionare l'immobile?

Fissa un appuntamento  Fissa un appuntamento

Richiedi informazioni

Clicca su Leggi per aprire l'informativa
* Questi campi sono obbligatori
Affiliato
Studio Premuda Sas
Viale Premuda, 7 20129 Milano (MI)

Il nostro staff


  • Alberto Cesati
    Affiliato

  • Francesco Basile
    Collaboratore

  • Carlotta Cenedese
    Coordinatrice

  • Elena Maria Convertini
    Collaboratrice
Viale Premuda, 7 20129 Milano (MI)
Zona: V Giornate-Premuda-Tribunale
Mostra su mappa
Affiliato
Studio Premuda Sas
Viale Premuda, 7 20129 Milano (MI)

2026 Tecnocasa Franchising S.p.A. - P. IVA 08365160152 - Via Monte Bianco 60/A 20089 Rozzano (MI). Ogni agenzia ha un proprio titolare ed è autonoma. Privacy policy | Policy utilizzo | Cookie policy