Trilocale in vendita

Milano, Via Marcona - XXII Marzo
€ 860.000
3 locali 3 locali
110 Mq 110 Mq
2 bagni 2 bagni

Trilocale in vendita

Milano, Via Marcona - XXII Marzo

Descrizione annuncio

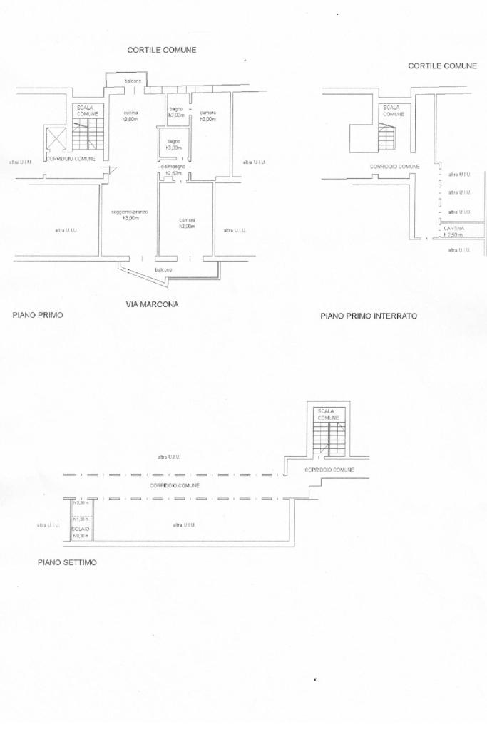
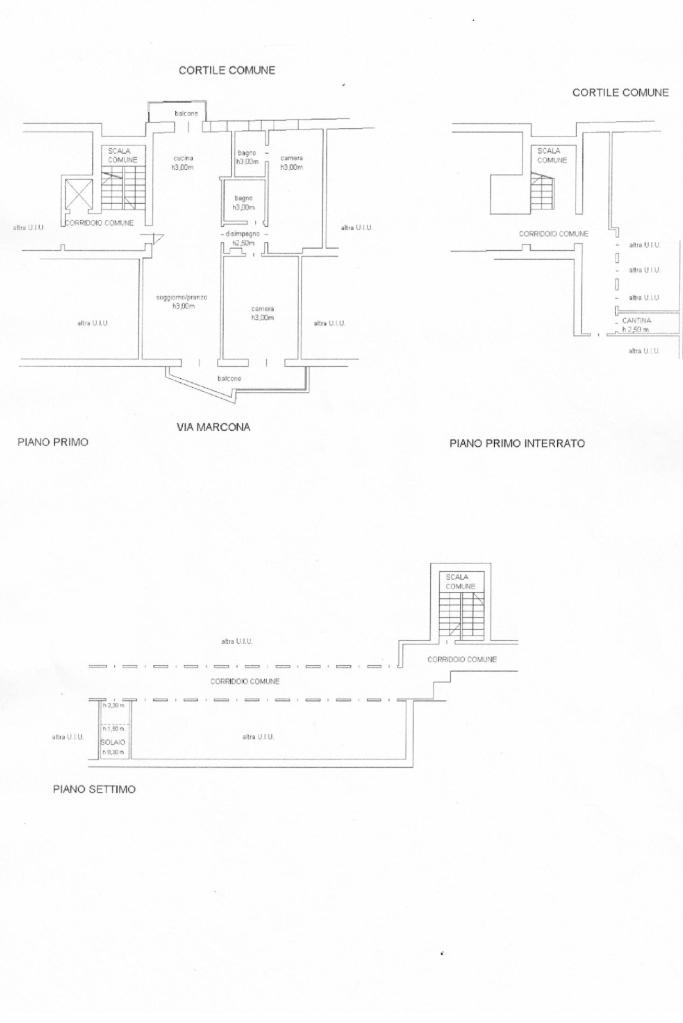
Nel cuore pulsante di Milano, nella vivace zona di Cinque Giornate, affascinante appartamento in vendita, perfetto per chi cerca un'abitazione dal carattere autentico. Situato in un edificio signorile, costruito nel 1960, con portineria mezza giornata.

Questo immobile con superficie di 110 mq, sito al primo piano con ascensore, si compone di un ampio soggiorno con cucina a vista, due camere da letto matrimoniali e due bagni, di cui uno finestrato.

L'appartamento è dotato di un balcone in cucina e di una balconata, esposta a Sud, a cui si accede dal soggiorno e dalla camera da letto, pertanto gode di ottima luminosità.

E' stato già deliberato il rifacimento delle facciate condominiali, con lavori di riqualificazione previsti a breve.

La posizione strategica permette di godere di tutti i servizi e le comodità che la città offre, con negozi, ristoranti e mezzi pubblici a pochi passi.

Nel prezzo sono compresi la cucina interamente su misura con penisola, oltre alle armadiature della camera da letto.

L'appartamento dispone di una cantina recentemente piastrellata e di un solaio.

Mostra tutto

Nelle vicinanze

Trasporto pubblico Trasporto pubblico
San Babila
San Babila
1,0 Km
Palestro
Palestro
1,1 Km
stazione di Milano Dateo
stazione di Milano Dateo
720 m
stazione di Milano Porta Vittoria
stazione di Milano Porta Vittoria
1,2 Km
Piazza Cinque Giornate
Piazza Cinque Giornate
240 m
Ricariche auto elettriche Ricariche auto elettriche
A2A Isola Digitale Cinque Giornate
280 m
A2A Isola Digitale Largo Marinai D'Italia
630 m
A2A Corso Indipendenza
650 m
A2A Corso Monforte
670 m
A2A Palazzo di Giustizia
790 m
Scuole Scuole
TJ Taylor Formazione Linguistica
390 m
Scuole
460 m
Scuola secondaria di primo grado "Giuseppe Verdi"
480 m
Conservatorio di Musica "Giuseppe Verdi"
490 m
Istituto Vittorio Colonna
540 m
Farmacia Farmacia
Farmacia
160 m
Archimede
170 m
Farmacia Remotti
200 m
Farmacia Dottor Cantone
240 m
Farmacia Premuda
280 m
Ospedali Ospedali
Centro Medico Milano Tree Of Life S.r.l.
620 m
Ospedale Macedonio Melloni
750 m
Ospedali
1,0 Km
Policlinico di Milano
1,2 Km
Casa di cura "Città di Milano"
1,3 Km
Supermercati Supermercati
Pam
120 m
Esselunga
130 m
Pam local
300 m
Pam Local
370 m
Negozio Leggero
380 m
Negozi Negozi
Intimissimi
190 m
Calzedonia
190 m
Boutique Oroblù
210 m
Robe di Kappa
220 m
Goldenpoint
220 m
Bar Bar
Bar
150 m
Impronta birraia
200 m
Lab Milano
240 m
Balubà
300 m
KOKO
400 m
Ristoranti Ristoranti
I due leccesi
130 m
Capperi... Che Pizza!
170 m
Da Giacomo
220 m
Muzzi Breakfast and Salad Bar
250 m
Lievità Pizzeria gourmet
260 m
Mostra tutto

Caratteristiche

Rif.:
61121944
Piano:
1 di 6 con ascensore (Piano medio)
Balconi:
2
Camere da letto:
2
Arredamento:
Parziale
Condizionamento:
Autonomo
Mostra tutto
Prezzo Prezzo
€ 860.000
Rata mutuo Rata mutuo
€ 3.940 / mese
Spese annue Spese annue
€ 3.600
Proponi il tuo prezzoProponi il tuo prezzo

Classe Energetica

E
E
E
E
E
E
E
E
E
EP globale non rinnovabile:
145.00 kW h/m² anno
Anno di costruzione:
1960
Riscaldamento:
Centralizzato
Tipo impianto:
A radiatori
Tipo alimentazione:
Metano

Ti interessa visionare l'immobile?

Fissa un appuntamento  Fissa un appuntamento

Richiedi informazioni

* Questi campi sono obbligatori

Calcola il tuo mutuo

Semplice e senza impegno
Anticipo

( % )
Mutuo

( % )

pochi semplici passi

inserisci i tuoi dati
Questionario completato
Grazie per aver richiesto un appuntamento senza impegno con un nostro Consulente del Credito e Assicurativo.

Hai inserito correttamente tutti i dati necessari e a breve riceverai una e-mail con un link da convalidare per inviare i tuoi dati.
Affiliato
Studio Premuda Sas
Viale Premuda, 7 20129 Milano (MI)

Il nostro staff


  • Alberto Cesati
    Affiliato

  • Francesco Basile
    Collaboratore

  • Carlotta Cenedese
    Coordinatrice

  • Elena Maria Convertini
    Collaboratrice
Viale Premuda, 7 20129 Milano (MI)
Zona: V Giornate-Premuda-Tribunale
Mostra su mappa
Affiliato
Studio Premuda Sas
Viale Premuda, 7 20129 Milano (MI)

2025 Tecnocasa Franchising S.p.A. - P. IVA 08365160152 - Via Monte Bianco 60/A 20089 Rozzano (MI). Ogni agenzia ha un proprio titolare ed è autonoma. Privacy policy | Policy utilizzo | Cookie policy