Bilocale in vendita

Milano, Via Fontana - Cinque Giornate
€ 530.000
2 locali 2 locali
45 Mq 45 Mq
1 bagno 1 bagno

Bilocale in vendita

Milano, Via Fontana - Cinque Giornate

Descrizione annuncio

APPARTAMENTO DI CHARME CON TERRAZZA E POSTO AUTO NEL CUORE DI MILANO.

Nel cuore di Milano, in Via Fontana, raffinato pied-à-terre situato all’ultimo piano di uno stabile con ascensore, a due passi dal Tribunale ed a pochi minuti da Piazza San Babila e Duomo, immerso tra gallerie d’arte, ristoranti, cinema e teatri.
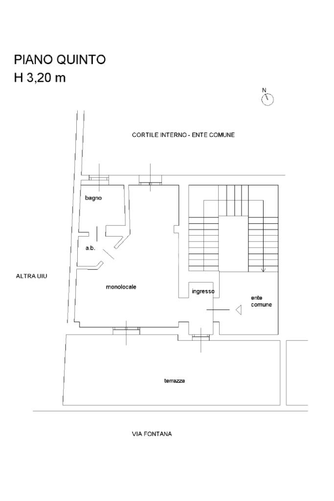
L’appartamento, posto al quinto ed ultimo piano, accoglie con un’atmosfera intima e armoniosa: ogni elemento è stato progettato su misura per valorizzare gli spazi e offrire un’esperienza abitativa elegante e confortevole. La luce naturale accompagna l’intera giornata.
La splendida terrazza di circa 25 mq è un ambiente raro nel centro cittadino, pensato come un’estensione naturale della zona living. Protetta da una pergola con lamelle orientabili, consente di vivere lo spazio esterno in ogni stagione: durante i mesi più caldi si apre completamente al cielo, mentre nelle altre stagioni mantiene un’atmosfera raccolta, accogliente e riscaldata. Qui trovano spazio un raffinato salotto all’aperto e una zona pranzo, ideali per cene tra amici o momenti di relax.
La cucina, realizzata artigianalmente su misura, unisce estetica e funzionalità. Le eleganti finiture richiamano lo stile inglese, con forno e cappa coordinati, mentre il piano a induzione, la lavastoviglie integrata e l’ampia organizzazione di cassetti e colonne rendono lo spazio estremamente pratico. Il frigorifero con freezer basso e l’impianto di acqua purificata completano una dotazione pensata per chi ama vivere la casa con comfort e attenzione ai dettagli.
Il bagno finestrato, luminoso e raffinato, è impreziosito da un'ampia doccia ed un mobile realizzato su misura con lavabo in ottone intarsiato, abbinato alla rubinetteria coordinata.
Anche gli spazi di servizio sono stati progettati con cura: due colonne lavanderia integrate ospitano lavatrice, asciugatrice e mensole contenitive, mantenendo ordine e funzionalità senza rinunciare all’armonia estetica dell’appartamento.
Gli arredi fissi realizzati a mano definiscono lo stile della casa: l’armadio a muro dell’ingresso e il grande armadio della zona notte con mensole libreria riprendono le delicate tonalità crema e verde della cucina e delle pareti, creando una continuità cromatica elegante e sofisticata, presente anche nei divisori interni e nei copriradiatori. Il letto ha quattro capienti cassettoni.
L’ingresso è protetto da una porta blindata rivestita in perfetta armonia con le altre porte interne, mentre i due split per aria calda e fredda e il riscaldamento condominiale garantiscono un comfort abitativo ottimale durante tutto l’anno.
La proprietà include inoltre una cantina al piano -1, rifinita con pavimentazione in legno. A circa dieci minuti a piedi dall’abitazione, in Via Daverio, completa l’offerta un posto auto coperto di 13 mq situato al piano -4 di un’autorimessa con servizio di guardiania attivo durante l’intera giornata.
Silenziosa e riservata, grazie agli affacci in parte sul cortile interno e in parte su Via Fontana — una via frequentata prevalentemente dai residenti — questa abitazione rappresenta un autentico rifugio di charme nel centro di Milano: un luogo dove luce, tranquillità e cura artigianale dei dettagli si incontrano per creare un piccolo angolo di eleganza sopra i tetti della città.

Mostra tutto

Nelle vicinanze

Trasporto pubblico Trasporto pubblico
San Babila
San Babila
740 m
Crocetta
Crocetta
920 m
stazione di Milano Dateo
stazione di Milano Dateo
1,2 Km
stazione di Milano Porta Vittoria
stazione di Milano Porta Vittoria
1,6 Km
Piazza Cinque Giornate
Piazza Cinque Giornate
240 m
Ricariche auto elettriche Ricariche auto elettriche
A2A Isola Digitale Cinque Giornate
240 m
A2A Palazzo di Giustizia
300 m
A2A Corso Monforte
620 m
Autoparcheggio San Barnaba
630 m
A2A Verziere
710 m
Scuole Scuole
Scuola secondaria di primo grado "Giuseppe Verdi"
160 m
Liceo scientifico statale Leonardo da Vinci
210 m
Istituto Vittorio Colonna
290 m
Conservatorio di Musica "Giuseppe Verdi"
330 m
Educandato Statale Emanuela Setti Carraro Dalla Chiesa
370 m
Farmacia Farmacia
Farmacia
70 m
FarmaCHL
130 m
Farmacia Ferrarini
250 m
Farmacia Dottor Cantone
290 m
Farmacia Remotti
330 m
Ospedali Ospedali
Ospedali
530 m
Centro Medico Milano Tree Of Life S.r.l.
620 m
Policlinico di Milano
700 m
Casa di cura "Città di Milano"
800 m
Casa di Cura La Madonnina
1,1 Km
Supermercati Supermercati
Pam Local
150 m
Bio C Bon
320 m
My Auchan
430 m
Negozio Leggero
470 m
Esselunga
470 m
Negozi Negozi
Calzedonia
40 m
Negozi
90 m
Carrefour Express
100 m
Robe di Kappa
300 m
Tezenis
300 m
Bar Bar
Bar
190 m
KOKO
250 m
Lab Milano
350 m
Impronta birraia
420 m
Extasià
490 m
Ristoranti Ristoranti
Gnulot Pasta Fresca
20 m
Na Gott
80 m
Ristorante Shorai
90 m
La Gavetta
140 m
La Toga
140 m
Mostra tutto

Caratteristiche

Rif.:
61192677
Piano:
5 di 5 con ascensore (ultimo Piano)
Posti auto:
1
Terrazzi:
1
Camere da letto:
1
Arredamento:
Completo
Mostra tutto
Prezzo Prezzo
€ 530.000
Rata mutuo Rata mutuo
€ 2.498 / mese
Spese annue Spese annue
€ 1.920
Proponi il tuo prezzoProponi il tuo prezzo

Classe Energetica

G
G
G
G
G
G
G
G
G
EP globale non rinnovabile:
223.82 kW h/m² anno
EP globale rinnovabile:
0.00 kW h/m² anno
EP invernale del fabbricato:
EP estiva del fabbricato:
Anno di costruzione:
1965
Riscaldamento:
Centralizzato
Tipo impianto:
A radiatori
Tipo alimentazione:
Metano

Ti interessa visionare l'immobile?

Fissa un appuntamento  Fissa un appuntamento

Richiedi informazioni

Clicca su Leggi per aprire l'informativa
* Questi campi sono obbligatori

Calcola il tuo mutuo

Semplice e senza impegno
Anticipo

( % )
Mutuo

( % )

pochi semplici passi

inserisci i tuoi dati
Questionario completato
Grazie per aver richiesto un appuntamento senza impegno con un nostro Consulente del Credito e Assicurativo.

Hai inserito correttamente tutti i dati necessari e a breve riceverai una e-mail con un link da convalidare per inviare i tuoi dati.
Affiliato
Studio Premuda Sas
Viale Premuda, 7 20129 Milano (MI)

Il nostro staff


  • Alberto Cesati
    Affiliato

  • Francesco Basile
    Collaboratore

  • Carlotta Cenedese
    Coordinatrice

  • Elena Maria Convertini
    Collaboratrice
Viale Premuda, 7 20129 Milano (MI)
Zona: V Giornate-Premuda-Tribunale
Mostra su mappa
Affiliato
Studio Premuda Sas
Viale Premuda, 7 20129 Milano (MI)

2026 Tecnocasa Franchising S.p.A. - P. IVA 08365160152 - Via Monte Bianco 60/A 20089 Rozzano (MI). Ogni agenzia ha un proprio titolare ed è autonoma. Privacy policy | Policy utilizzo | Cookie policy